jueves, 31 de mayo de 2018

Estaciones (189ª parte)

31 mayo 2018

Estación Santa Lucia

Accesos lado poniente










Estaciones (188ª parte)

31 mayo 2018

 Estación Adolfo Prieto

Continuan los trabajos de ajuste de la membrana del techo de los andenes.




Estaciones (187ª parte)

31 mayo 2018

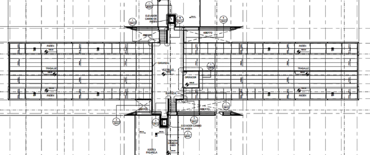
 Estación Félix U. Gómez. 

Fueron montadas dos escaleras eléctricas entre el pasillo para intercambio de andenes norte de la Línea 2/3 y el andén poniente de la L2/3. Con estas dos, se han instalado 4 de 20 escaleras eléctricas con las que contará esta estación.




Escaleras Electricas y elavadores (2a parte)

Lista de escaleras electricas y elevadores de la Estacion Felix U. Gomez


miércoles, 30 de mayo de 2018

Estaciones elevadas en otros sistemas (1a parte)

Algunos estaciones de sistema de transporte sobre rieles para uso urbano se construyen en zonas de aparente poco movimiento de pasajeros de modo que los vestíbulos estén prácticamente integrados a los andenes.

Tal es el caso de 8 de las 13 estaciones elevadas de la L3 de Siteur.

Como ejemplo, la Estación Mercado del Mar


El intercambio de andenes se efectúa mediante un pasillo ubicado en un nivel superior.




Además de la reducida capacidad de transporte, carece de la funcionalidad que le daría el tener un vestíbulo a un nivel diferente como es caso de las otras 5 estaciones elevadas de esa línea.

Como ejemplo, la Estación Belenes.




Algo en común que tienen las 13 estaciones elevadas y 5 estaciones subterráneas es la corta longitud de los andenes (75 metros), esto aunado al que varias curvas del viaducto cuantan con radios cortos que según las autoridades federales y estatales (Jalisco) cumplen dudosos estándares para Trenes ligeros.

Por los motivos antes expuestos y la aparente falta de ventilación en las estaciones elevadas, definitivamente este tipo de estaciones no son adecuadas para el cada vez más saturado Sistema Metrorrey. 

Talleres Metrorrey (2a parte)

El lunes 28 de mayo se dio el fallo por la Licitación No. LO-919009986-E12-2018 correspondiente a la Construcción de Ampliación de Nave de mantenimiento menor y depósito San Bernabé, ubicada en Av. Aztlán entre calle Esquisto y calle Monte Olimpo, en Col. San Bernabé, Mty. N.L. (Talleres de Metrorrey). 

Unos días antes, el 15 de mayo se habían presentado 14 propuestas técnicas y económicas cuyos montos variaron entre los poco más de 42.8 millones de pesos y los poco más de 77.7 millones de pesos. Todos incluyendo IVA. 

El fallo fue a favor de COTELSA, S.A de C.V. por un monto de 49 millones 844 mil 396 pesos y 68 centavos incluyendo IVA. El contrato deberá firmarse el 31 de mayo del presente. Las actividades deberán iniciar el 11 de junio y concluirse el 5 de febrero del 2019. Falta por darse el fallo por los trabajos de la construcción de la obra ferroviaria y sistema de catenaria para la ampliación de dichos talleres.

lunes, 28 de mayo de 2018

Estaciones (186ª parte)

28 mayo 2017

Estación Félix U. Gómez

Ayer domingo por la noche fueron montadas las primeras dos escaleras eléctricas en la Estación Félix U. Gómez. Las escaleras fuero montadas entre la extension  del andén norte de la L2 y el pasillo para intercambio de andenes norte de la Línea 2/3. Las siguientes 2 escaleras de este tipo se montaran entre ese pasillo y el andén poniente de la L2/3.

En total está estación contará con 20 escaleras eléctricas y 7 elevadores.



Extensión  del andén norte de la L2


Pasillo para intercambio de andenes de la L2/3

.
Uno de los cubos para elevadores. En total seran 7 elevadoes en esta estació


Accesoas laso norte




Estaciones (185ª parte)

28 mayo 2017 Estacion Adolfo Prieto

Trabajares ajustando parte de la membrana del techo de los andenes.



Estaciones (184ª parte)

Estacion Hospital Metropolitano



Estacion Ruiz Cortines 



Estacion Adolfo Prieto 



sábado, 26 de mayo de 2018

Estaciones (183ª parte)

26 mayo 2018

Estación Conchello

Una de las seis las estaciones en donde ya fue iniciado el proceso de pintado.

Puente entre el cubo del elevador y el andén poniente. 



Accesos lado oriente. 






Estaciones (182ª parte)

26 mayo 2018

Estación Hospital Metropolitano

Además de haberse iniciado el proceso de pintado, fue instalado el barandal en parte de los accesos tanto hacia el vestíbulo como de este hacia los andenes.

Accesos lado poniente


Barandal en el acceso poniente hacia el vestíbulo


Barandal en escalera hacia andén norponiente


Barandal en escalera hacia andén nororiente 



Cubo para elevadores oriente




De paso, una foto de la cola de maniobras